
当前位置: 首页>>中文网站>>旭锐产品>>工业冷库制冷成套设备>>工业冷水机系列
产品名称:水冷螺杆冷水机组(-35℃)
产品分类: 工业冷水机系列
产品型号: XRLGx-ZH
工作电压:380V/3/50HZ
工作温度:-15℃ ~15 ℃
功 率:
电子邮件:shs@shxurui.cn
订购热线:021-39905996
- 产品特点 标准配置 技术参数 常见问题 售后服务
-
随着制冷设备市场的快速发展,大型的保鲜冷库、低温冷藏库、制冰设备等越来越多,对于氟利昂活塞式压缩机已很难满足这些设备的需要,本公司开发的XRLG系列半封闭中温螺杆冷凝机组,可分别满足于8℃~-5℃、-15℃~-23℃的需要,可广泛使用于较大的保鲜库、冷藏库、制冰、冷冻水等制冷设备中。
该系列产品具有如下特点:
◆ 选用台湾汉钟新型5:6非对称转子半封闭螺杆压缩机,具有效率高、寿命长、震动小、噪音低等特点;
◆ 具有多级能量调节,可根据冷负荷的变化进行能量调节,有效降低能耗;
◆ 机组具有压缩机线圈温度保护、排气温度保护、低油位、油压差及系统高低压等多种保护。
-
风冷并联中高温系列:
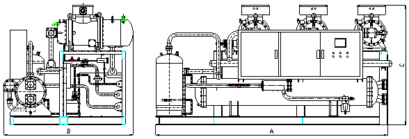
yle="width:168px;height:20px;"> 机组型号 yle="width:108px;height:20px;"> XRLGF2-60ZH yle="width:96px;height:20px;"> XRLGF2-80ZH yle="width:108px;height:20px;"> XRLGF2-100ZH yle="width:96px;height:20px;"> XRLGF2-120ZH yle="width:96px;height:20px;"> XRLGF2-140ZH yle="width:168px;height:21px;"> 适用温度(℃) yle="width:504px;height:21px;"> -5℃~8℃ yle="width:168px;"> 制冷剂 yle="width:504px;"> R22 yle="width:168px;height:19px;"> 电源 yle="width:504px;height:19px;"> 380V/50HZ yle="width:36px;"> 压缩机 yle="width:132px;"> 形式 yle="width:504px;"> 半封闭螺杆式 yle="width:132px;"> 型号 yle="width:108px;"> RC2-100B yle="width:96px;"> RC2-140B yle="width:108px;"> RC2-180B yle="width:96px;"> RC2-230B yle="width:96px;"> RC2-260B yle="width:132px;height:13px;"> 数量 yle="width:108px;height:13px;"> 2 yle="width:96px;height:13px;"> 2 yle="width:108px;height:13px;"> 2 yle="width:96px;height:13px;"> 2 yle="width:96px;height:13px;"> 2 yle="width:168px;height:20px;"> 机组能量调节 yle="width:312px;height:20px;"> 33%-50%-66%-100% yle="width:192px;height:20px;"> 25%-50%-75%-100% yle="width:36px;"> 冷量及功率 yle="width:48px;"> 蒸发0℃ yle="width:84px;"> 冷量(KW) yle="width:108px;"> 152.6 yle="width:96px;"> 208.4 yle="width:108px;"> 273.6 yle="width:96px;"> 363.0 yle="width:96px;"> 398.6 yle="width:84px;"> 功率(KW) yle="width:108px;"> 50.0 yle="width:96px;"> 65.8 yle="width:108px;"> 82.4 yle="width:96px;"> 100.2 yle="width:96px;"> 120.0 yle="width:48px;"> 蒸发-5℃ yle="width:84px;"> 冷量(KW) yle="width:108px;"> 125.4 yle="width:96px;"> 171.4 yle="width:108px;"> 225.0 yle="width:96px;"> 298.8 yle="width:96px;"> 328.0 yle="width:84px;"> 功率(KW) yle="width:108px;"> 47.8 yle="width:96px;"> 63.0 yle="width:108px;"> 79.0 yle="width:96px;"> 105.4 yle="width:96px;"> 115.0 yle="width:48px;"> 蒸发-10℃ yle="width:84px;"> 冷量(KW) yle="width:108px;"> 102.2 yle="width:96px;"> 139.6 yle="width:108px;"> 183.6 yle="width:96px;"> 243.6 yle="width:96px;"> 267.4 yle="width:84px;"> 功率(KW) yle="width:108px;"> 45.8 yle="width:96px;"> 60.4 yle="width:108px;"> 75.6 yle="width:96px;"> 101.0 yle="width:96px;"> 110.0 yle="width:36px;"> 接口 yle="width:132px;"> 吸气接口(mm) yle="width:108px;"> φ66 yle="width:96px;"> φ79 yle="width:108px;"> φ108 yle="width:96px;"> φ108 yle="width:96px;"> φ108 yle="width:132px;height:12px;"> 供液接口(mm) yle="width:108px;height:12px;"> φ35 yle="width:96px;height:12px;"> φ35 yle="width:108px;height:12px;"> φ42 yle="width:96px;height:12px;"> φ42 yle="width:96px;height:12px;"> φ42 yle="width:132px;height:21px;"> 排气接口(mm) yle="width:108px;height:21px;"> φ54 yle="width:96px;height:21px;"> φ54 yle="width:108px;height:21px;"> φ66 yle="width:96px;height:21px;"> φ66 yle="width:96px;height:21px;"> φ79 yle="width:132px;height:9px;"> 进液接口(mm) yle="width:108px;height:9px;"> φ35 yle="width:96px;height:9px;"> φ35 yle="width:108px;height:9px;"> φ42 yle="width:96px;height:9px;"> φ42 yle="width:96px;height:9px;"> φ42 yle="width:168px;height:18px;"> 外形尺寸A×B×C(mm) yle="width:108px;height:18px;"> 2300×1470×1460 yle="width:96px;height:18px;"> 2300×1490×1460 yle="width:108px;height:18px;"> 2650×1610×1470 yle="width:96px;height:18px;"> 3090×1840×1860 yle="width:96px;height:18px;"> 3290×1840×1860
yle="width:168px;height:20px;"> 机组型号 yle="width:108px;height:20px;"> XRLGF2-160ZH yle="width:99px;height:20px;"> XRLGF2-180ZH yle="width:105px;height:20px;"> XRLGF2-200ZH yle="width:96px;height:20px;"> XRLGF2-220ZH yle="width:96px;height:20px;"> XRLGF2-250ZH yle="width:168px;height:21px;"> 适用温度(℃) yle="width:504px;height:21px;"> -5℃~8℃ yle="width:168px;"> 制冷剂 yle="width:504px;"> R22 yle="width:168px;height:19px;"> 电源 yle="width:504px;height:19px;"> 380V/50HZ yle="width:36px;"> 压缩机 yle="width:132px;"> 形式 yle="width:504px;"> 半封闭螺杆式 yle="width:132px;"> 型号 yle="width:108px;"> RC2-310B yle="width:99px;"> RC2-340B yle="width:105px;"> RC2-370B yle="width:96px;"> RC2-410B yle="width:96px;"> RC2-470B yle="width:132px;height:17px;"> 数量 yle="width:108px;height:17px;"> 2 yle="width:99px;height:17px;"> 2 yle="width:105px;height:17px;"> 2 yle="width:96px;height:17px;"> 2 yle="width:96px;height:17px;"> 2 yle="width:168px;height:19px;"> 机组能量调节 yle="width:504px;height:19px;"> 25%-50%-75%-100% yle="width:36px;"> 冷量及功率 yle="width:48px;"> 蒸发0℃ yle="width:84px;"> 冷量(KW) yle="width:108px;"> 496.8 yle="width:99px;"> 543.4 yle="width:105px;"> 588.2 yle="width:96px;"> 647.4 yle="width:96px;"> 770.6 yle="width:84px;"> 功率(KW) yle="width:108px;"> 142.0 yle="width:99px;"> 156.4 yle="width:105px;"> 170.6 yle="width:96px;"> 189.8 yle="width:96px;"> 220.4 yle="width:48px;"> 蒸发-5℃ yle="width:84px;"> 冷量(KW) yle="width:108px;"> 408.8 yle="width:99px;"> 447.2 yle="width:105px;"> 484.0 yle="width:96px;"> 532.8 yle="width:96px;"> 634.4 yle="width:84px;"> 功率(KW) yle="width:108px;"> 136.0 yle="width:99px;"> 149.8 yle="width:105px;"> 163.4 yle="width:96px;"> 181.8 yle="width:96px;"> 211.0 yle="width:48px;"> 蒸发-10℃ yle="width:84px;"> 冷量(KW) yle="width:108px;"> 333.6 yle="width:99px;"> 365.0 yle="width:105px;"> 395.0 yle="width:96px;"> 434.6 yle="width:96px;"> 517.6 yle="width:84px;"> 功率(KW) yle="width:108px;"> 130.4 yle="width:99px;"> 143.6 yle="width:105px;"> 156.6 yle="width:96px;"> 174.0 yle="width:96px;"> 202.2 yle="width:36px;"> 接口 yle="width:132px;"> 吸气接口(mm) yle="width:108px;"> φ108 yle="width:99px;"> φ108 yle="width:105px;"> φ133 yle="width:96px;"> φ133 yle="width:96px;"> φ133 yle="width:132px;height:18px;"> 供液接口(mm) yle="width:108px;height:18px;"> φ54 yle="width:99px;height:18px;"> φ54 yle="width:105px;height:18px;"> φ66 yle="width:96px;height:18px;"> φ66 yle="width:96px;height:18px;"> φ66 yle="width:132px;height:20px;"> 排气接口(mm) yle="width:108px;height:20px;"> φ79 yle="width:99px;height:20px;"> φ79 yle="width:105px;height:20px;"> φ108 yle="width:96px;height:20px;"> φ108 yle="width:96px;height:20px;"> φ108 yle="width:132px;height:19px;"> 进液接口(mm) yle="width:108px;height:19px;"> φ54 yle="width:99px;height:19px;"> φ54 yle="width:105px;height:19px;"> φ66 yle="width:96px;height:19px;"> φ66 yle="width:96px;height:19px;"> φ66 yle="width:168px;height:23px;"> 外形尺寸A×B×C(mm) yle="width:108px;height:23px;"> 3370×2010×1860 yle="width:99px;height:23px;"> 3370×2010×1860 yle="width:105px;height:23px;"> 3470×2100×2100 yle="width:96px;height:23px;"> 3700×2140×2130 yle="width:96px;height:23px;"> 3700×2140×2130 yle="width:168px;height:20px;"> 机组型号 yle="width:108px;height:20px;"> XRLGF3-90ZH yle="width:99px;height:20px;"> XRLGF3-120ZH yle="width:105px;height:20px;"> XRLGF3-150ZH yle="width:96px;height:20px;"> XRLGF3-180ZH yle="width:96px;height:20px;"> XRLGF3-210ZH yle="width:168px;height:21px;"> 适用温度(℃) yle="width:504px;height:21px;"> -5℃~8℃ yle="width:168px;"> 制冷剂 yle="width:504px;"> R22 yle="width:168px;height:19px;"> 电源 yle="width:504px;height:19px;"> 380V/50HZ yle="width:36px;"> 压缩机 yle="width:132px;"> 形式 yle="width:504px;"> 半封闭螺杆式 yle="width:132px;"> 型号 yle="width:108px;"> RC2-100B yle="width:99px;"> RC2-140B yle="width:105px;"> RC2-180B yle="width:96px;"> RC2-230B yle="width:96px;"> RC2-260B yle="width:132px;height:13px;"> 数量 yle="width:108px;height:13px;"> 3 yle="width:99px;height:13px;"> 3 yle="width:105px;height:13px;"> 3 yle="width:96px;height:13px;"> 3 yle="width:96px;height:13px;"> yle="width:168px;height:20px;"> 机组能量调节 yle="width:312px;height:20px;"> 33%-66%-100% yle="width:192px;height:20px;"> 16%-33%-50%-66%-83%-100% yle="width:36px;"> 冷量及功率 yle="width:48px;"> 蒸发0℃ yle="width:84px;"> 冷量(KW) yle="width:108px;"> 228.9 yle="width:99px;"> 312.6 yle="width:105px;"> 410.4 yle="width:96px;"> 544.5 yle="width:96px;"> 597.9 yle="width:84px;"> 功率(KW) yle="width:108px;"> 75.0 yle="width:99px;"> 98.7 yle="width:105px;"> 123.6 yle="width:96px;"> 165.3 yle="width:96px;"> 180.0 yle="width:48px;"> 蒸发-5℃ yle="width:84px;"> 冷量(KW) yle="width:108px;"> 188.1 yle="width:99px;"> 257.1 yle="width:105px;"> 337.5 yle="width:96px;"> 448.2 yle="width:96px;"> 492.0 yle="width:84px;"> 功率(KW) yle="width:108px;"> 71.7 yle="width:99px;"> 94.5 yle="width:105px;"> 118.5 yle="width:96px;"> 158.1 yle="width:96px;"> 172.5 yle="width:48px;"> 蒸发-10℃ yle="width:84px;"> 冷量(KW) yle="width:108px;"> 153.3 yle="width:99px;"> 209.4 yle="width:105px;"> 275.4 yle="width:96px;"> 365.4 yle="width:96px;"> 401.1 yle="width:84px;"> 功率(KW) yle="width:108px;"> 68.7 yle="width:99px;"> 90.6 yle="width:105px;"> 113.4 yle="width:96px;"> 151.5 yle="width:96px;"> 165.0 yle="width:36px;"> 接口 yle="width:132px;"> 吸气接口(mm) yle="width:108px;"> 2×φ79 yle="width:99px;"> 2×φ79 yle="width:105px;"> 2×φ79 yle="width:96px;"> 2×φ108 yle="width:96px;"> 2×φ108 yle="width:132px;height:12px;"> 供液接口(mm) yle="width:108px;height:12px;"> φ42 yle="width:99px;height:12px;"> φ42 yle="width:105px;height:12px;"> φ54 yle="width:96px;height:12px;"> φ66 yle="width:96px;height:12px;"> φ66 yle="width:132px;height:21px;"> 排气接口(mm) yle="width:108px;height:21px;"> φ54 yle="width:99px;height:21px;"> φ66 yle="width:105px;height:21px;"> φ79 yle="width:96px;height:21px;"> φ79 yle="width:96px;height:21px;"> φ108 yle="width:132px;height:20px;"> 进液接口(mm) yle="width:108px;height:20px;"> φ42 yle="width:99px;height:20px;"> φ42 yle="width:105px;height:20px;"> φ54 yle="width:96px;height:20px;"> φ66 yle="width:96px;height:20px;"> φ66 yle="width:168px;height:18px;"> 外形尺寸A×B×C(mm) yle="width:108px;height:18px;"> 2800×1570×1460 yle="width:99px;height:18px;"> 3000×1630×1780 yle="width:105px;height:18px;"> 3200×1690×1790 yle="width:96px;height:18px;"> 3700×1910×1860 yle="width:96px;height:18px;"> 3930×2040×2100
说明:制冷量及功率标定冷凝温度为45℃。yle="width:168px;height:20px;"> 机组型号 yle="width:192px;height:20px;"> XRLGF3-240ZH yle="width:156px;height:20px;"> XRLGF3-270ZH yle="width:156px;height:20px;"> XRLGF3-300ZH yle="width:168px;height:21px;"> 适用温度(℃) yle="width:504px;height:21px;"> -5℃~8℃ yle="width:168px;"> 制冷剂 yle="width:504px;"> R22 yle="width:168px;height:19px;"> 电源 yle="width:504px;height:19px;"> 380V/50HZ yle="width:36px;"> 压缩机 yle="width:132px;"> 形式 yle="width:504px;"> 半封闭螺杆式 yle="width:132px;"> 型号 yle="width:192px;"> RC2-310B yle="width:156px;"> RC2-340B yle="width:156px;"> RC2-370B yle="width:132px;height:17px;"> 数量 yle="width:192px;height:17px;"> 3 yle="width:156px;height:17px;"> 3 yle="width:156px;height:17px;"> 3 yle="width:168px;height:19px;"> 机组能量调节 yle="width:504px;height:19px;"> 16%-33%-50%-66%-83%-100% yle="width:36px;"> 冷量及功率 yle="width:48px;"> 蒸发0℃ yle="width:84px;"> 冷量(KW) yle="width:192px;"> 745.2 yle="width:156px;"> 815.1 yle="width:156px;"> 882.3 yle="width:84px;"> 功率(KW) yle="width:192px;"> 213.0 yle="width:156px;"> 234.6 yle="width:156px;"> 255.9 yle="width:48px;"> 蒸发-5℃ yle="width:84px;"> 冷量(KW) yle="width:192px;"> 613.2 yle="width:156px;"> 670.8 yle="width:156px;"> 726.0 yle="width:84px;"> 功率(KW) yle="width:192px;"> 204.0 yle="width:156px;"> 224.7 yle="width:156px;"> 245.1 yle="width:48px;"> 蒸发-10℃ yle="width:84px;"> 冷量(KW) yle="width:192px;"> 500.4 yle="width:156px;"> 547.5 yle="width:156px;"> 592.5 yle="width:84px;"> 功率(KW) yle="width:192px;"> 195.6 yle="width:156px;"> 215.4 yle="width:156px;"> 234.9 yle="width:36px;"> 接口 yle="width:132px;"> 吸气接口(mm) yle="width:192px;"> 2×φ108 yle="width:156px;"> 2×φ108 yle="width:156px;"> 2×φ108 yle="width:132px;height:18px;"> 供液接口(mm) yle="width:192px;height:18px;"> φ66 yle="width:156px;height:18px;"> φ66 yle="width:156px;height:18px;"> φ66 yle="width:132px;height:17px;"> 排气接口(mm) yle="width:192px;height:17px;"> φ108 yle="width:156px;height:17px;"> φ133 yle="width:156px;height:17px;"> φ133 yle="width:132px;height:15px;"> 进液接口(mm) yle="width:192px;height:15px;"> φ66 yle="width:156px;height:15px;"> φ66 yle="width:156px;height:15px;"> φ66 yle="width:168px;height:11px;"> 外形尺寸A×B×C(mm) yle="width:192px;height:11px;"> 3930×2040×2100 yle="width:156px;height:11px;"> 3930×2140×2100 yle="width:156px;height:11px;"> 3930×2140×2100
-
yle="width: 588px; height: 201px;" /> -
-
* 表示必填采购:水冷螺杆冷水机组(-35℃)








